
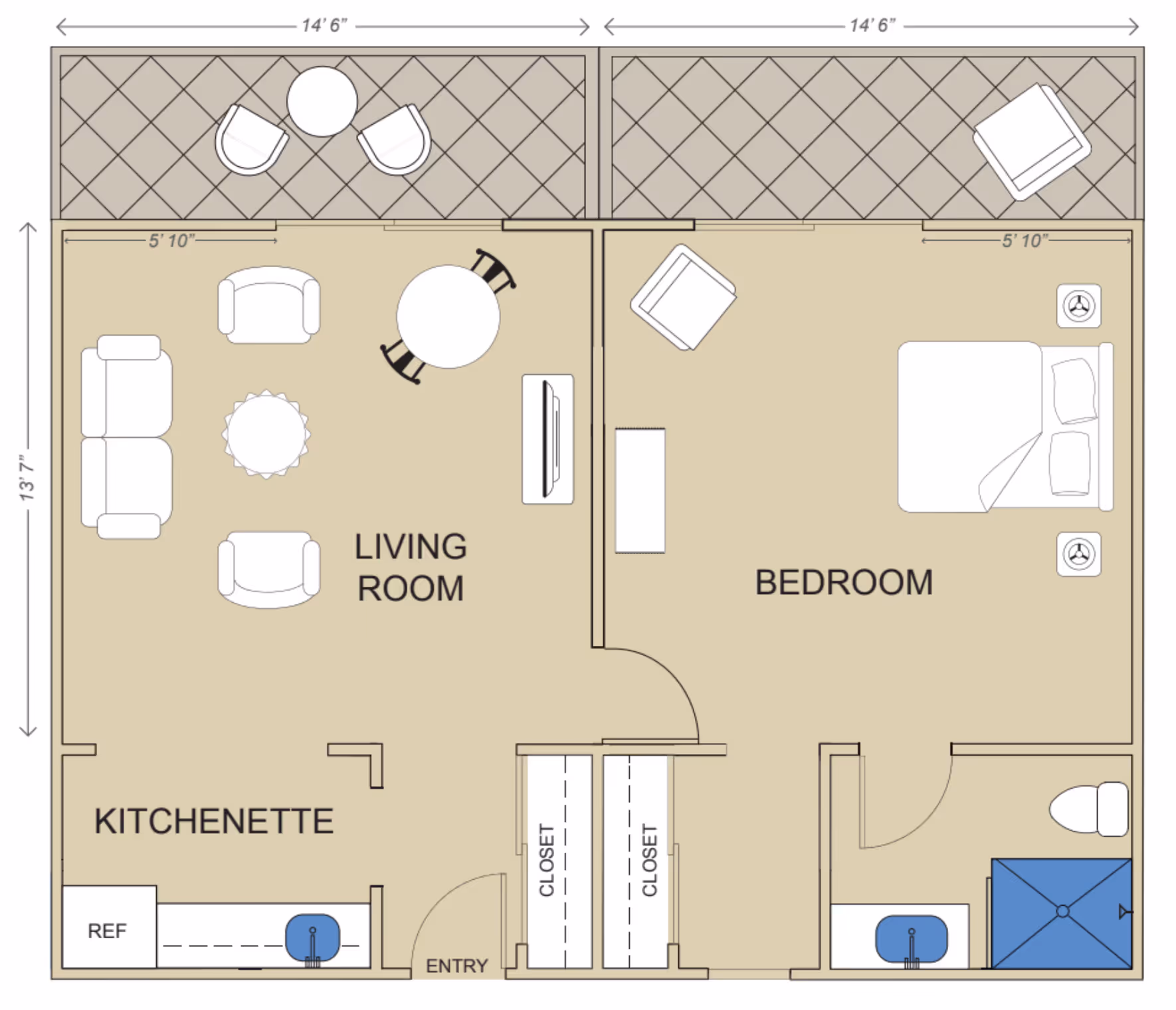
We think you’ll love this beautiful one bedroom suite apartment at Silvergate San Marcos. This is the largest floor plan at Silvergate, perfect for a couple that is downsizing from a larger home and used to bigger living spaces.
Features specific to the one bedroom suite include:
View the photos and floor plan of this unit by clicking the photo below:
